| Provider | WÖHR Polska Sp. z o. o. |
| Purpose | Essential cookies enable basic functions and are necessary for the proper functioning of the website. |
| Privacy Statement | https://woehr.de/de/datenschutz.html |
| Names | PHPSESSID, csrf_contao_csrf_token, csrf_https-contao_csrf_token |
| Lifetime | When ending the browser session. |
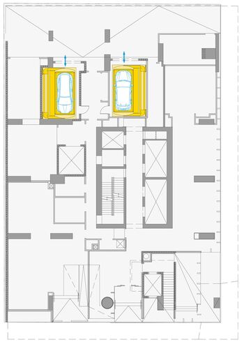
Victoria One / Melbourne, Australia / Multiparker 740
WÖHR Multiparker 740 w budynku „Skytower Victoria One” - oszczędność miejsca w najwyższym budynku mieszkalnym w centrum Melbourne.
Projekt: Elenberg Fraser Architekci
System parkowania samochodów: WÖHR Multiparker 740
Maksymalne i optymalne wykorzystanie powierzchni w najwyższym budynku mieszkalnym w centrum Melbourne.
Najwyższy budynek mieszkalny i sześć najwyższych budynków w mieście zaplanowali architekci z firmy „Elenberg Fraser”. Architekci już zbudowali kilka wieżowców w stolicy stanu Wiktoria.
Budowa rozpoczęła się w 2014 roku i oznaczała nowatorski i energooszczędny projekt, z którego znani są architekci. Fasada budynku zapewnia równowagę wentylacji, oświetlenia i zmniejsza zużycie energii. Materiały są inspirowane otaczającą obiekt roślinnością oraz symbolami ziemi, skał i wody.
Garaż w „Skytower”: nasz system parkowania, który jest w stanie wykonać 30 - 47 cykli parkowania na godzinę, z dwoma kabinami wjazdowo-wyjazdowymi. Multiparker 740 układa samochody o wysokości od 160 do 200 cm na 11 poziomach regału garażowego. Całkowita wysokość obiektu w części garażowej wynosi ok. 25 mi zaczyna się od ok. 12 m nad poziomem wjazdu do budynku. Procedury parkowania są obsługiwane za pomocą chipa RFID na panelu sterowania, który znajduje się w pobliżu obszaru transferu.
SPECYFIKACJA PROJEKTU:
- WÖHR Multiparker 740
- 2 pomieszczenia wjazdowo-wyjazdowe z obrotnicami
- 11 poziomów parkingowych
- Obsługa za pomocą układu RFID
- Długość pojazdu max. 525 cm
- Wysokość pojazdu max. 200 cm
- Szerokość pojazdu max. 220 cm
- Całkowita powierzchnia parkingowa ok. 450 mkw
- Powierzchnia na miejsce parkingowe ok. 2,8 m2
- Zdolność parkowania 30-47 samochodów / godz.